École d’architecture
de la ville & des territoires
Paris-Est

Cahiers du DSA

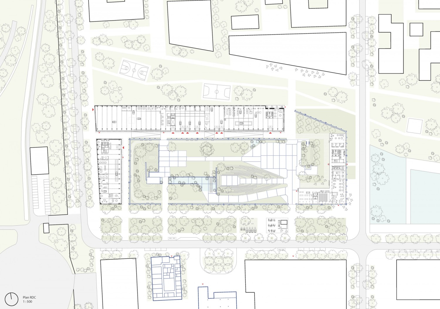
Du champ de tir au campus des mobilités – Aménagement du Hall A de l’Université Gustave Eiffel sur le plateau de Satory à Versailles

Après un siècle et demi d’usage militaire, des institutions de recherche dédiées à la mobilité s’installent sur le plateau de Satory à Versailles, profitant de l’infrastructure disponible, notamment des pistes d’essais pour véhicules. C’est dans ce contexte que l’Ifsttar a aménagé en 1999 des laboratoires de recherche sur le Hall A, un ancien polygone de tir pour artillerie lourde situé au milieu des pistes. Aujourd’hui, avec la création de la ZAC Satory Ouest visant à convertir le plateau en quartier urbain, l’Ifsttar, désormais intégré à l’Université Gustave Eiffel, envisage de transformer le Hall A en campus des mobilités du futur. Un ample programme de laboratoires de recherche, salles d’enseignement et espaces dédiés à la communication et à la vie de quartier doit être construit d’ici 2030. Le DSA d’architecte-urbaniste est mandaté pour proposer un cadre spatial permettant de valoriser la recherche et le développement dans le nouveau quartier, prenant en compte un contexte bâti particulier, afin de donner forme à ce cluster des mobilités innovantes. Cette étude implique des questionnements trans-scalaires dont l’impact se juge à l’échelle de la future ZAC, du quartier, de l’îlot et enfin du projet architectural proprement dit. Elle demande un positionnement dans le débat sur la nécessité de préservation d’un héritage identitaire en contraste avec un ordre général prévu pour le futur quartier, mais aussi sur le rapport entre confidentialité scientifique et ouverture au public. Enfin, le désenclavement de la parcelle et la démilitarisation du site conduisent à repenser la relation au futur quartier. Les enjeux sont abordés dans un premier temps à travers cinq scenarii d’implantation servant de base de discussion avec les commanditaires. Le choix se porte sur un dispositif mettant en valeur les vestiges militaires dans un jardin dense à l’intérieur de l’enceinte du Hall A, entouré de constructions soulignant le tracé des anciens murs. Le plan proposé rend possible la flexibilité spatiale nécessaire pour articuler recherche de pointe et urbanité.

Commanditaire de l’étude
Institut français des sciences et technologies des transports, de l’aménagement et des réseaux (Ifsttar)

Étudiants
Marine Bissinger
Andrei Corbet Nits
Bertrand Salaun